Ürünler

YİÇ-2256 Çift Kat Çelik

Çift Kat / Çelik / YIC-2256-CIFT-KAT-CELIK

Proje Açıklaması

Toplam Net: 256m2 3 Veranda/85,9m² 5 Yatak Odası/65,8m² 4 Banyo/15,3m² Salon + Mutfak Firmamızın Sorumluluğundaki İşler İstenilen renkte iç ve dış cephe boyaması Çelik dış kapı montajı Amerikan iç kapı montajı PVC doğrama çift ısıcamlı pencere montajı Su tesisatının dışa bağlantıya hazır şekilde çekilmesi ve test edilmesi Elektrik tesisatının dışa bağlantıya hazır şekilde çekilmesi ve test edilmesi Vitrifiye ve armatür temini (Müşteri montajı yapar) Çatı kaplaması, izolasyon, dere inişleri ve oluk montajı Müşterilerimizin Sorumluluğundaki İşler Zemin betonu, her türlü hafriyat işleri ve çevre düzenlemeleri Zemin ve duvar kaplama işleri (şap, seramik, fayans, halı vs.) Yapının kurulabilmesi için gerekli olan izinler Yapı harici dış bağlantılar (elektrik, atık su ve temiz su, sayaçlar) Montaj ekibinin konaklama ve yemek giderlerinin karşılanması Mutfak alt ve üst dolapları Nakliye ve nakliye sigortası

Toplam Net: 256m2

3 Veranda/85,9m²

5 Yatak Odası/65,8m²

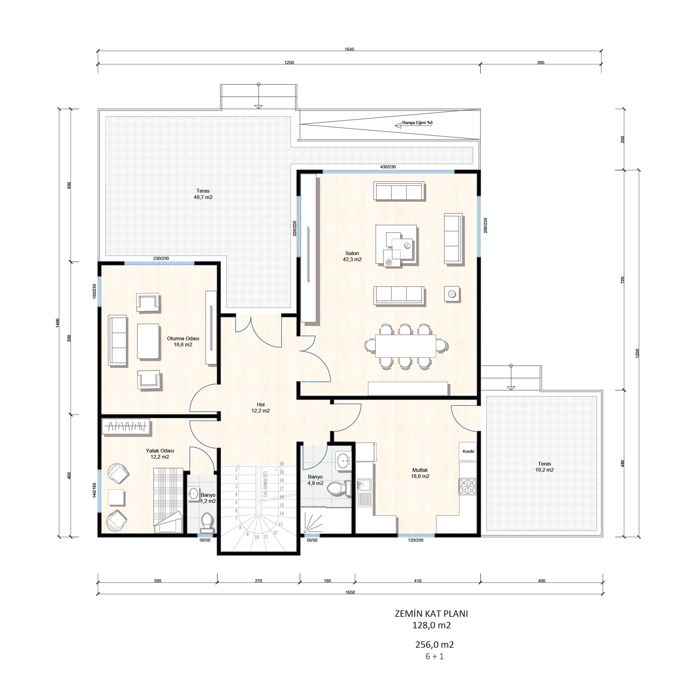
Proje Planları

2.Kat Planı
2.Kat Planı
1.Kat Planı
1.Kat Planı

Benzer Projeler

YİÇ-2120 Çift Kat Çelik

Çift Kat / Çelik

YİÇ-2120 Çift Kat Çelik

YİÇ-2167 Çift Kat Çelik

Çift Kat / Çelik

YİÇ-2167 Çift Kat Çelik

YİÇ-2170 Çift Kat Çelik

Çift Kat / Çelik

YİÇ-2170 Çift Kat Çelik